Karlshus Terrasse

Leilighet 1 - 1 etg.

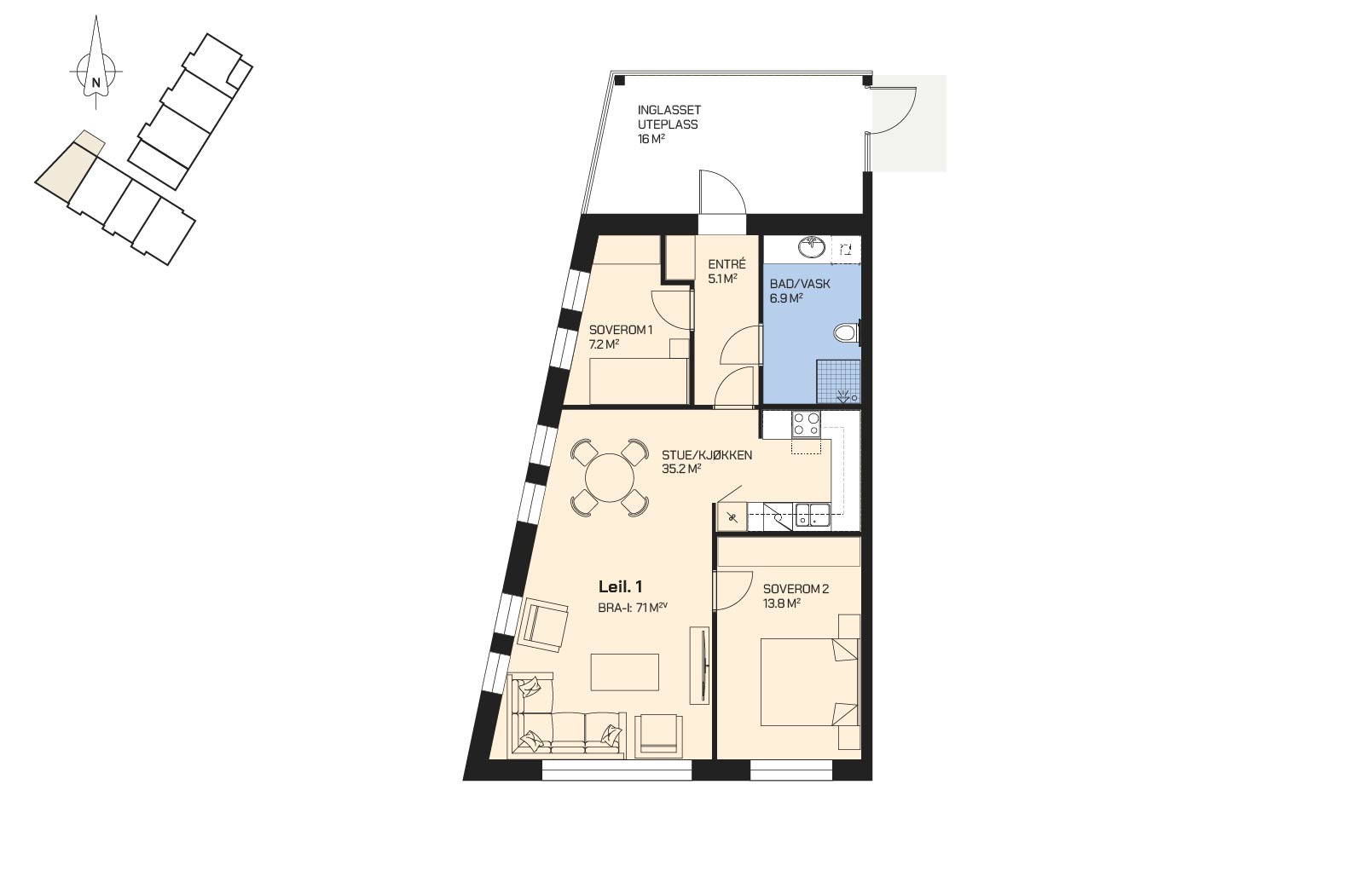
3-roms - 71 kvm BRA-i - Fasade sør / vest
 
1
3-roms leilighet i 1. etasje med 2 soverom. Intern bruksareal på 71 kvm samt bod på 5,0 kvm og nord-vestvendt innglasset uteplass på 16 kvm. Badet leveres med 60 x 60 fliser og mosaikk i dusjsjone. Sportsbod i 1. etasje. 
Totalpris inkl. omk.
4873860,-
Omkostninger
23860,-

Bruksareal (BRA)

92 m2

Internt bruksareal (BRA-i)

71 m2

Eksternt bruksareal (BRA-e)

5,0 m2

Innglasset balkong (BRA-b)

16 m2

Nøkkelinfo

Leilighetstype

3-roms

Antall soverom

2

Status

Ledig

Etasje

1

Fasiliteter

parkeringskjeller
elektronisk låssystem
fiber og trådløst bredbånd
høykvalitets laminat
felles takterrasse i 4. etasje
Vannbåren varme med fjernvarmetilkobling
Tilrettelagt for elbil-lading

Tilvalg

Ved kjøp av leilighet – i god tid før byggestart, vil du få tilbud om tilvalg fra våre samarbeidspartnere inne kjøkken, bad, gulv, elektro, overflater, innvendige dører med mer. Du vil også kunne be om byggtekniske endringer som ekstra spikerslag for oppheng av TV m.m. Ta gjerne kontakt for mer informasjon.

Kart

Fasadevideo